Osobní vlastnictví

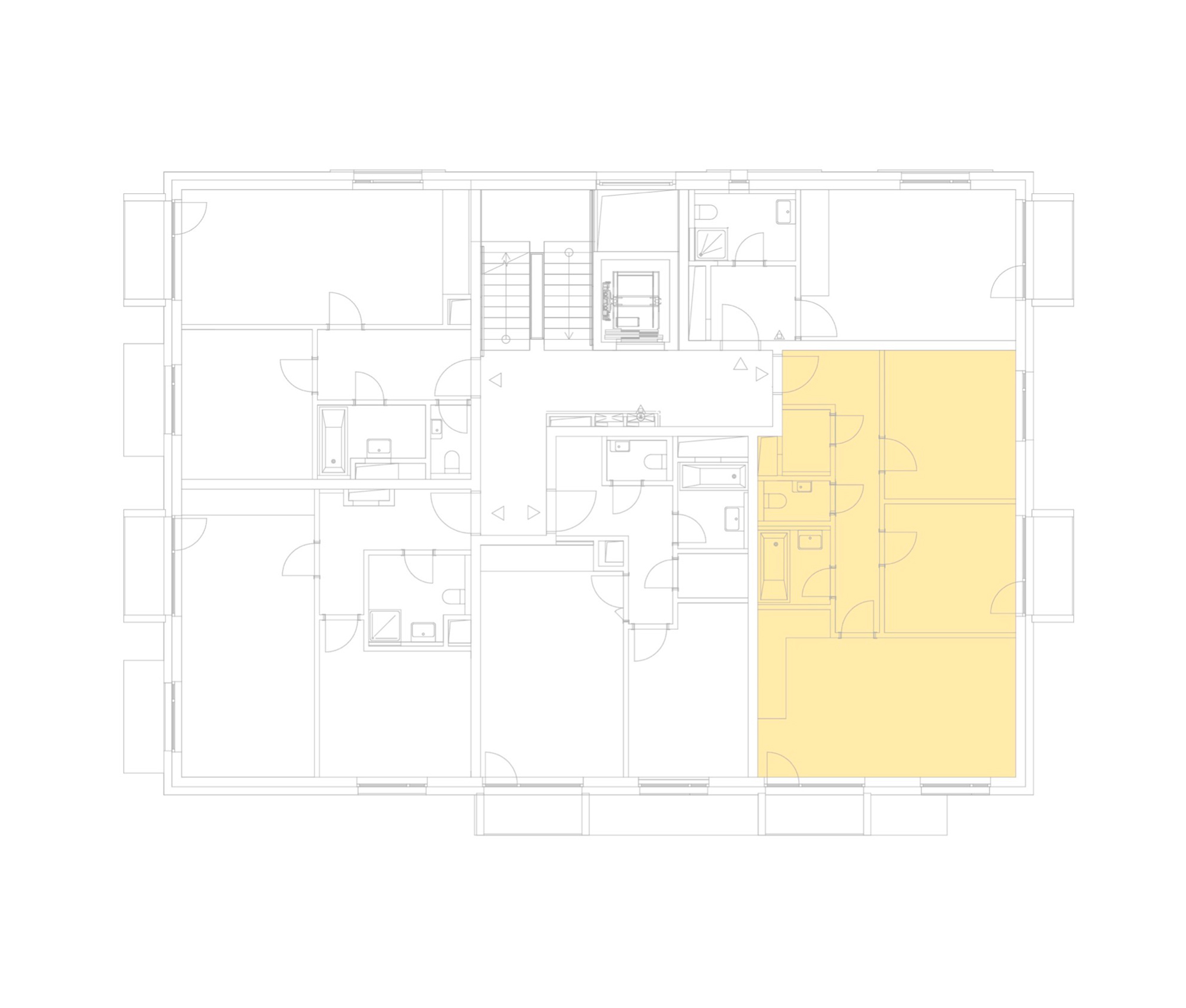
Byt E431

Prodaný
Budova Mimořádně úsporná budova E.3
Podlaží 2. patro
Dispozice 3+kk
Orientace JV, SV
Podlahová plocha 66,87 m2
Balkón 5,8 m2
Celková užitná plocha 68,3 m2

Parkovací stání k bytu od 649 500 Kč s DPH.
K bytové jednotce lze dokoupit sklep.

Hypoteční kalkulačka

Chcete mít rychlý přehled o tom, jaké budou vaše měsíční splátky hypotéky? Využijte naši intuitivní hypoteční kalkulačku. Je to jednoduché a zcela bez závazků - stačí zadat pár základních informací a hned získáte orientační představu o výši vašich splátek.

* takto označené položky je třeba vyplnit

let
%
Měsíční splátka
0
,- Kč

Máte zájem o tento byt nebo
potřebujete zodpovědět nějaký dotaz?

Kontaktujte nás!

Kontaktujte nás:

Kontaktní formulář

* takto označené položky je třeba vyplnit

Copyright © 2026 Trikaya Asset Management a.s.

Vybudováno v

Nastavení ukládaní cookies

Používáme cookies k personalizaci obsahu a reklam, k umožnění funkcionalit sociálních sítí a k analýze provozu webových stránek. Informace o provozu a užívání webových stránek Vámi jsou sdíleny s našimi sociálními sítěmi, reklamními a analytickými partnery, kteří je mohou kombinovat s dalšími informacemi, které jste jim poskytli nebo které o Vás sesbírali při užívání jejich služeb.

Povolit vše
Vlastní

Vlastní nastavení cookies