Družstevní bydlení

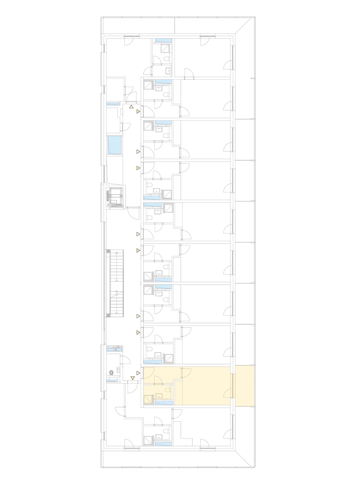
Byt D322

Prodaný
Budova Mimořádně úsporná budova D.1.2
Podlaží 1. patro
Dispozice 1+kk
Orientace JZ
Podlahová plocha 27,2 m2
Balkón 6,8 m2
Celková užitná plocha 32,4 m2

K bytu je možné dokoupit parkovací stání od 649 500 Kč a sklep v ceně 50 000 Kč za m2

Družstevní kalkulačka

Pomocí naší kalkulačky si můžete snadno spočítat orientační výši měsíčního nájemného, které budete platit družstvu. Stačí zadat cenu nemovitosti, výši členského vkladu (minimálně 20–25 % z ceny nemovitosti) a úrokovou sazbu.

Aktuálně pracujeme s úrokovou sazbou 5,5 %, která zatím není finální hodnotou.

* takto označené položky je třeba vyplnit

%
%
let
Měsíční nájemné
0
,- Kč

Máte zájem o tento byt nebo
potřebujete zodpovědět nějaký dotaz?

Kontaktujte nás!

Kontaktujte nás:

Kontaktní formulář

* takto označené položky je třeba vyplnit

Copyright © 2026 Trikaya Asset Management a.s.

Vybudováno v

Nastavení ukládaní cookies

Používáme cookies k personalizaci obsahu a reklam, k umožnění funkcionalit sociálních sítí a k analýze provozu webových stránek. Informace o provozu a užívání webových stránek Vámi jsou sdíleny s našimi sociálními sítěmi, reklamními a analytickými partnery, kteří je mohou kombinovat s dalšími informacemi, které jste jim poskytli nebo které o Vás sesbírali při užívání jejich služeb.

Povolit vše
Vlastní

Vlastní nastavení cookies